一、电话站布置基本要求
电话站内设备布置应符合“以近期为主,远近期相结合”的原则,并要满足下列要求:
(1)整齐美观。
(2)便于扩充发展。
(3)安全适用和维护方便。
话务台室宜与电话交换机室相邻,话务台的安装宜能使话务员通过观察窗正视或侧视到机列上的信号灯。总配线架或配线箱应靠近自动电话交换机;电缆转接箱或用户端子板应靠近人工电话交换机,并均应考虑电缆引人、引出的方便和用户所在方位。电话站交换机的容量在200门及以下(程控交换机500门及以下),总配线架(箱)采用小型插入式端子箱时,可置于交换机室或话务台室;当容量较大时,交换机话务台与总配线架应分别置于不同房间内。容量在360回线以下的总配线架落地安装时,一侧可靠墙;大于360回线时,与墙1的距离一般不小于0.8m。横列端子板离墙一般不小于1m,直列保安器排离墙一般不小于1.2m,挂墙装设的小型端子配线箱底边距地一般为0.6m成套供应的自动电话交换机的安装铁件,列间距离应按生产厂家的规定,否则设备(机架)各种排列方式的间距应符合表4-20的规定。
表4-20设备(机架)各种排列方式的间距
| 名 称 | 建议距离/m | 名 称 | 建议距离/m |
| 相邻机列面对面排列的距离 | ≥1.5 | 主通道 | 1.5 〜2.0 |
| 相邻机列面对背排列的距离 | 1.0〜1.5 | 设备侧面距墙 | 应不小于0.8m |
| 相邻机列背对背排列的距离 | 0.8 |
注:当机列背面不需要维护时可靠墙安装。
电话站内机列、总配线架、整流器和蓄电池等通信设备的安装应采取加固措施。当有抗震要求时,其加固要求应按当地规定的抗震烈度再提高一度来考虑。配线架与机列间的电缆敷设方法宜采用地面线槽或走线架。交直流线路可穿管埋地敷设。电话站内机架正面宜与机房窗户垂直布置。
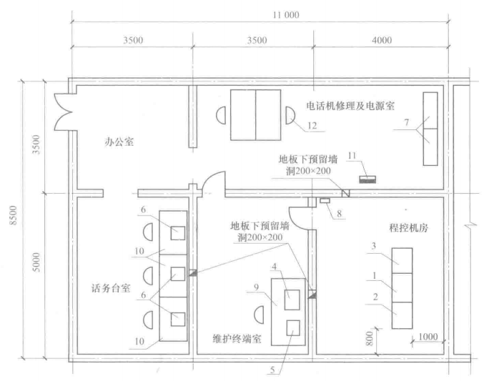
电话站的典型布置示例如图4-17所示。

图4-17交换机1000门程控电话站平面布置
示例1一交换机主机柜;2-交换机扩展柜;3一配线电源柜:4-维护终端(含打印机);5一计费装置;
6一话务台;7一全密封免维护铅酸蓄电池;8一按地板;9一终端桌(大型);10一终端桌;11一交流配电箱;12-椅子
示例1一交换机主机柜;2-交换机扩展柜;3一配线电源柜:4-维护终端(含打印机);5一计费装置;
6一话务台;7一全密封免维护铅酸蓄电池;8一按地板;9一终端桌(大型);10一终端桌;11一交流配电箱;12-椅子
二、电话机房的位置选择
(1)机房应设在便于管理、交通方便的位置,不宜邻贴外城。
(2)机房的位置应方便各种管线的进出,尽量靠近弱电间、控制室。电话机房宜设置在首层以上、四层以下的房间。
(3)电话机房内设备布置应符合近期为主、远近期相结合的原则。
(4)远离易燃、易爆场所。
(5)机房不应设于变压器室、汽车库、厕所、锅炉房、洗衣房、浴室等产生蒸汽、烟尘、有害气体、电磁辐射干扰的相邻和上、下层相对应的位置。
(6)蓄电池室内设备参照下列要求进行布置。
1)蓄电池组为免维护电池时,可采用机框安装方式2)双列箭电池组与墙间的平行通道宽度不小于0.8m;单列蓄电池组可靠墙安装,蓄电池与培间的距离为0.1~0.2m。
3)同一组蓄电池分双列平行安装于同一电池台(架)时,列间距为0.15m。
4)蓄电池台(架)之间的通道宽度不小于0.8m。
5)蓄电池台(架)的一端应留有主要通道,其宽度通常为1.2-1.5m,另一端与墙间的净距为0.1-0.3m。
6)蓄电池与采暖散热器的净距不小于0.8m,蓄电池不得安装在暖气沟上面。
(7)电话交换系统机房内机柜、用户总配线架、整流器和蓄电池等通信设备的安装应采取加固措施。加固要求按当地基本设计烈度进行抗震加固。
(8)总配线架与各机柜间的电缆可采用地面线槽、活动地板下线槽或走线架等敷设方式。交直流线路可穿管埋地敷设。
三、电话交接间的设置
电话交接间与智能化系统的病电间要求相同,其位置选择应符合下列要求。
(1)弱电间应与配电间、电梯间、水暖管道间分别设置。
(2)弱电间应设在便于管理、交通方便的位置,弱电间不宜邻贴外墙。
弱电间的位置应方便各种管线的进出,尽量靠近控制室、机房,位于布线中心。
(3)弱电间距最远信息点的距离应满足水平电缆小于路径等条件,每层设置一个及以上弱电间。
(4)根据建筑面积、系统出线的数量、弱电间应在与上下层对应的位置。
(5)兼作综合布线系统楼层交接间时,满足90m的要求。
另外,每600-1000应设置一个电话电缆交接间,其使用面积不应小于10m²,当建筑物内设置电话交换机时,电话电缆交接间应与电话用户总配线架结合设置。
四、电话站机房的照明
(1)交换机室、话务室、电力室应设应急照明。
(2)电话站的工作照明(包括免维护蓄电池室)一般采用荧光灯,布置灯位时应使各机(H)架、机台或需要的架面、台面均应达到规定照度标准(见表4-21)。
表4-21 电话站机房照明的照度标准值
| 名 称 | 照度标准值 | 计算点高度/m | 备 注 |
| 用户交换机室 | 100—150—200 | 1.40 | 垂直照度 |
| 话务台 | 75—100—150 | 0.80 | 水平照度 |
| 总配线架室 | 100—150—200 | 1.40 | 垂直照度 |
| 控制室 | 100—150—200 | 0. 80 | 水平照度 |
| 电力室配电盘 | 75—100—150 | 1.40 | 垂直照度 |
| 蓄电池槽上表面,电缆进线室电缆架 | 30—50—75 | 0.80 | 水平照度 |
| 传输设备室 | 100—150—200 | 1.40 | 垂直照度 |